Quelques projets récents en collaboration avec architectes et entrepreneurs

Chaque projet est une réponse sur mesure aux défis d’un lieu, d’une architecture et d’un client.

Voici quelques mandats esthétiques  notre équipe a allié confort thermique et discrétion esthétique – sans compromis sur la coordination.

Résidence neuve sans sous-sol | Montérégie | 2024

Capacité : 120 000 BTU/h

Défis :

  • Design de ventilation
  • Grande fenestration
  • Salle mécanique en retrait

Solutions :

  • Système géothermique à air pulsé en 3 zones.
  • Chauffage géothermique (plancher radiant).
  • Plusieurs dessins de coordination ont été réalisés en 3D sur SketchUp.

En collaboration : La Shed Architecture | Construction Modulor.

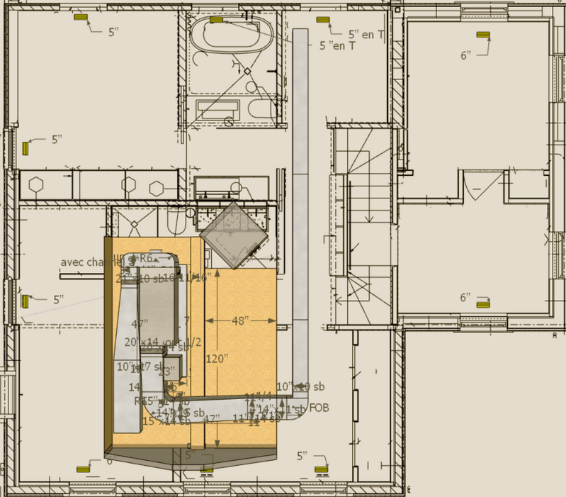
Agrandissement d’une résidence unifamiliale | Montréal | 2024

Capacité : 60 000 BTU/h

Défis :

  • Haut mur vitré orienté à l’ouest dans le séjour
  • Limitations structurales
  • Salle mécanique sous-sol à 6′

Solutions :

  • Deux systèmes centraux 2 & 3 tonnes Fujitsu. 3 zones.
  • Salle mécanique construite dans le comble
  • Retour et alimentation combinés dans une même grille de plancher au périmètre du séjour
  • Traitement du séjour en zone distincte avec diffusion plancher et plafond
  • Registres EH Price LBPH plâtrés

En collaboration : La Shed Architecture | Construction Benoit Tremblay.

Agrandissement d’une résidence | Ville Mont-Royal | 2024-25

Capacité : 72 000 BTU/h

Défis :

  • Limitations structurales et architecturales importantes
  • Charge importante dans la salle à manger et cuisine
  • Travaux dans le comble

Solutions :

  • Deux systèmes centraux 3 & 3 tonnes Fujitsu. 4 zones.
  • 2e salle mécanique construite dans le comble
  • Plusieurs révisions des plans de ventilation 3D sur SketchUp
  • Zonage précis
  • Isolation des conduits R20

En collaboration : kbn | Whiteoak Construction

Conversion en bi-génération | Plateau Mont-Royal | 2024-25

Capacité : 18 et 24 000 BTU/h

Défis :

  • Espace limité pour thermopompes
  • Sous-sol rabaissé
  • Logement parent enclavé
  • Puits de lumière

Solutions :

  • Un accumulateur de chaleur Steffes avec thermopompe Trane -30°C
  • Unité minisplit double zone Fujitsu
  • Poussée d’air dans les puits de lumières
  • Coordination avec les architectes avant l’octroi du contrat
  • Subvention de plus de 22 000 $

En collaboration : atelier l’abri | Cassia Construction

Nous avons travaillé avec eux

ARCHITECTES | DESIGNERS

CONSTRUCTEURS